




Weston, FL 33327
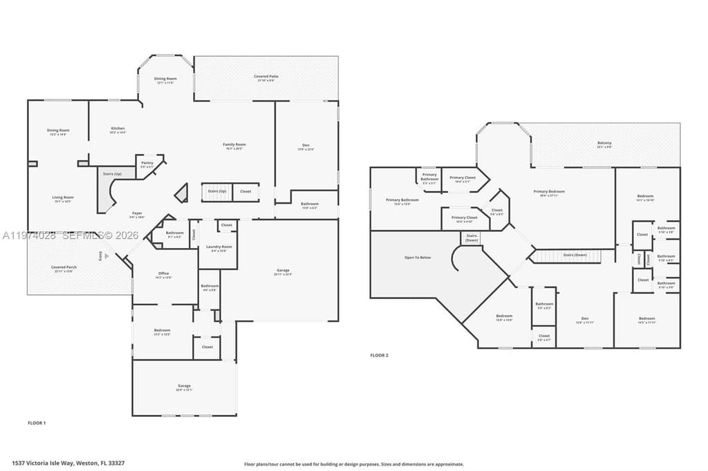
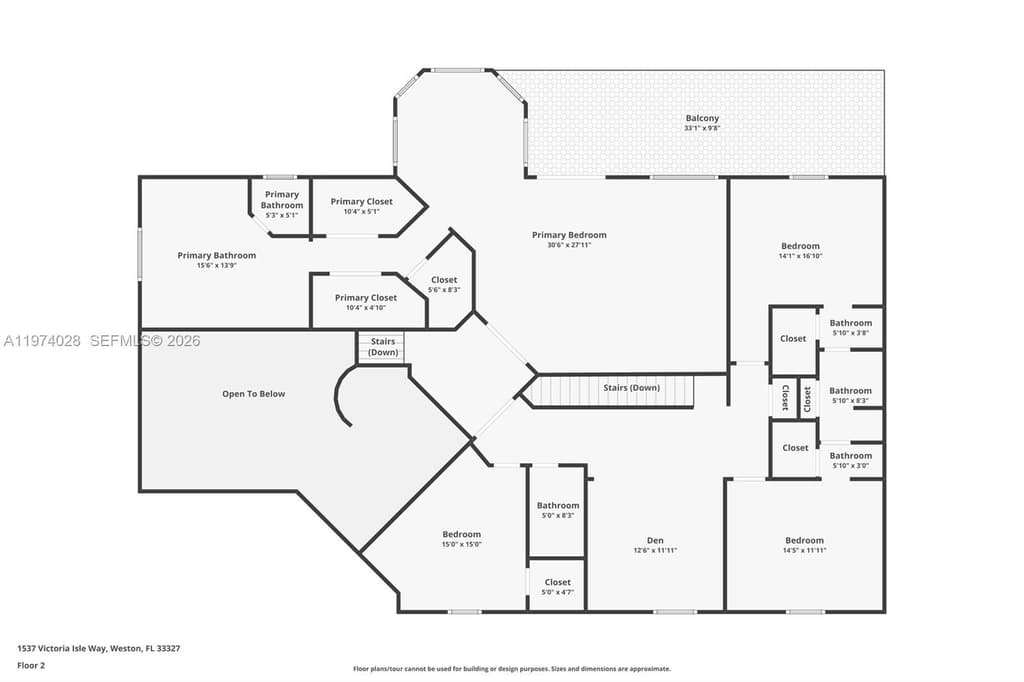
Million $$$ Lake View! You can Personalize a Home with decor, but the view is one of a kind! Weston Hills Country Club Masterpiece in Victoria Isle. Enter into Refined and Sophisticated Living. The Expansive living spaces (over 5,300 sq ft under air) are both Luxurious for Entertaining & Comfortable for Everyday Living. A Grand, Floating Staircase greets you at the Foyer, and leads to the Private Master Retreat. The Children's Wing features its own Staircase. Natural Light and Fine Finishes fill Every Room. The Distinct Architectural Design easily functions as a Multi-Generational Home or a Large Family Home. ADDITIONAL ROOMS include A Designated Den, A 20x14 Game/Play/Media Room, a 19x13 Additional Room/Library/Office w/ Built-Ins that stay, and Guest Quarters with a 14x12 Bedroom (currently used as a gym), an en suite Bath, it's own entrance to the Exterior Circular Drive, a separate 1-car garage with a private entrance from the Guest Quarters. When you awake in your Master Retreat, enjoy your Morning Coffee from your Covered Balcony (26x12 ft). Start your day overlooking your Serene, Sweeping Lake Views & your Resort-Style Pool, Spa & Waterfall. Magnificent Sunsets will captivate you at the end of your day. Ambiance abounds! Renovated in 2023 in Today's Impressive Contemporary Style, with Fine Finishes and thoughtful attention to detail. A Feature Sheet is attached. Weston Hills is a Desirable, Upscale Community in Weston, known for its excellent security and A+ Schools.